Previous | Next | Discuss :: Free Advice (General Feng Shui)
Dear Cheui May,
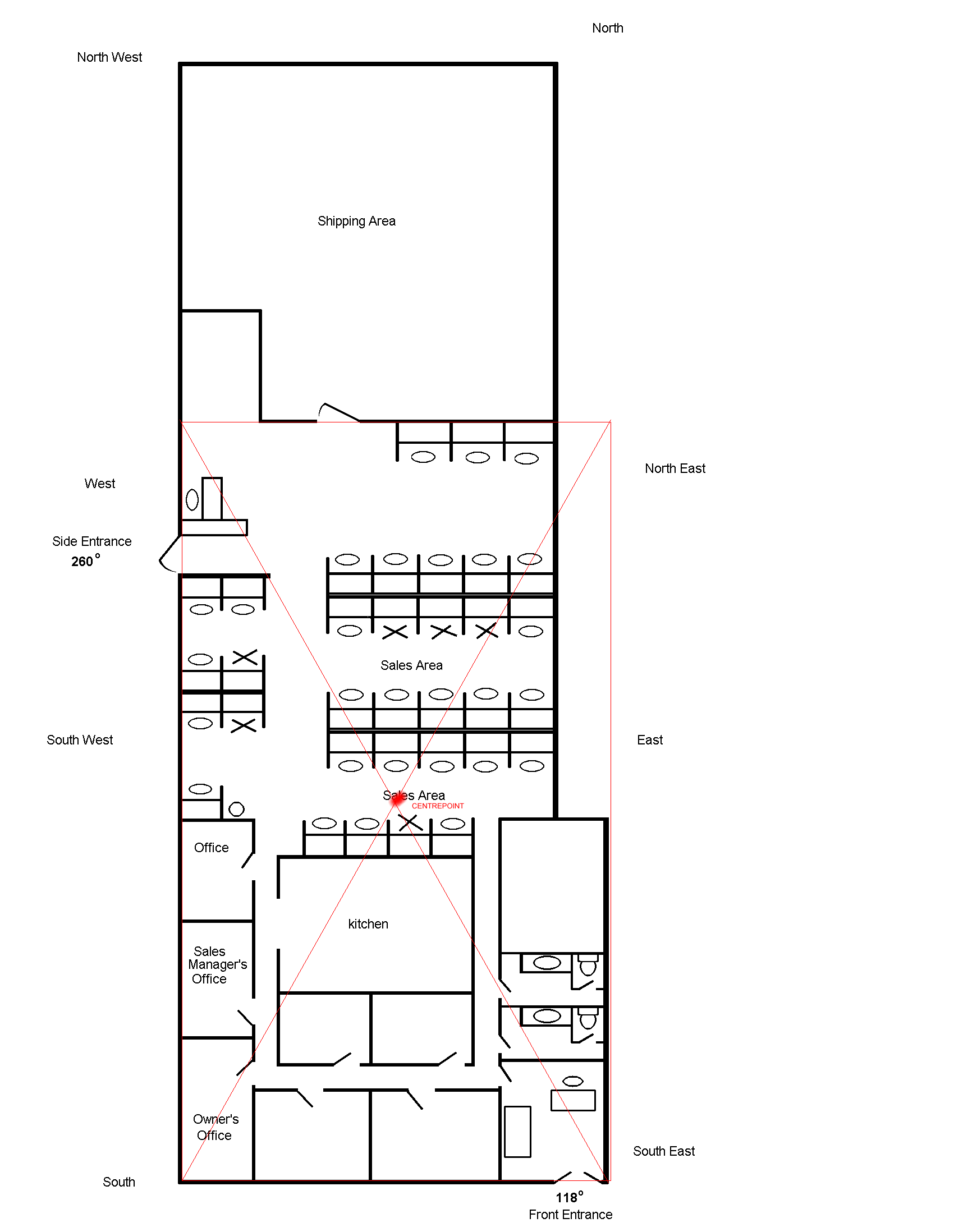
Please see attached layout plan. The Shipping area should not be included in the layout.
Regards,
Cecil
On 7/2/00 6:04:00 AM, Cheui May Heui wrote:
>Dear Cecil,
>
>Sorry it took me so long to
>get this layout to you.
>
>I couldn't find the center
>because I don't know if I
>should include the shipping
>area or not. The cubical with
>x marked on it are the ones
>that are opened to me. I also
>know in a month or so, there
>will be three other people
>leaving. So if you see a
>location that is best for me,
>please note it even though
>there is no x there.
>
>>If you want ot do a Flying
>>Star chart, please e-mail me
>>privately so that I can give
>>you a free credit for it.
>
>Thank you for your generous
>offer to help me again. I
>don't know if I would need it
>though. Because if the
>shipping area is included in
>the analysis, then the compass
>reading of the main door from
>the center of the building is
>almost exactly the same as the
>reading of my home. The two
>structures are both built in
>the same era, so I assume that
>the flying chart will be the
>same. But if the shipping
>area is not considered part of
>the building, then I would
>need another chart.
>
>I realize that the main
>entrance is in the SE which is
>death to me. I am using a side
>entrance from the parking lot
>that is in my Longevity or
>Health sector depending on
>whether the shipping area is
>considered or not. Do you
>think that is good enough to
>over come the bad front
>entrance?
>
>Thanks.
>
>Cheui May
>
>>On 6/21/00 1:53:00 AM, Cheui May Heui
>>wrote:
>>>Dear Cecil,
>>>
>>>How are you? Hope you and
>>>Robert are well.
>>>
>>>I haven't participated for a
>>>while, because I placed the
>>>cures that you recommended and
>>>my attitude seemed to have
>>>changed and now instead of
>>>being sick and depressed,
>>>wondering how I'm going to get
>>>out of debt, I've started
>>>working. Thank you for all
>>>the help that you have given
>>>me.
>>>
>>>I am working as a phone rep
>>>for a company that sells
>>>computer supplies. Being a
>>>weak water, would that be a
>>>lucrative business for me?
>>>
>>>My new manager is very kind to
>>>me and have agreed to let me
>>>choose any desk that is
>>>available. I would like to
>>>choose the best location for
>>>my element and have drawn a
>>>layout of the building. It is
>>>about 75 feet wide by 200 feet
>>>long. In the front 2/3 are
>>>the offices and the back is
>>>the shipping. My question is
>>>shall I include the shipping
>>>area in the analysis?
>>>
>>>Thanks,
>>>
>>>Cheui May
>>
>>
>>
revisedoffice.gif
Finding the centrepoint (46,519 bytes)
|
|
[ Site Search | Forum Search | Picture Search | Site Map ] |
|
|
|
|
||
|
Help Desk: (65) 9785-3171 |
||
|
|
|
|
|
Highlights |
|
Extend your learning with Master Cecil Lee's Applied Feng Shui Made Easy Book. |
|
Site Navigation |
|
|
|
|
![]()